Progress on the ground at Kao La Amani Primary School and Pre-School: New facilities to transform learning in Boma Ng’ombe

Construction progress at Kao La Amani Preschool and Primary School is delivering tangible change for children and staff in Boma Ng’ombe. With Phase 1 refurbishment works complete and the school open for the new academic year, pupils are learning in brighter, safer classrooms – while preparations for the next major construction phase are well advanced.

The project is already demonstrating how well-considered, locally grounded design can transform daily life. From refurbished classrooms now in full use, to detailed designs for a new dining block that will also function as a library and social hub, progress on site is strong and momentum is building.

For Louise Quill, client and representative of Tír na nÓg Children’s Foundation, the progress on site reflects concrete improvements to children’s daily lives at Kao La Amani School:

“These upgrades are already improving how children learn at Kao La Amani. With classrooms back in use and new dining, water and power infrastructure moving forward, the school is becoming a safer, healthier and more reliable place for children in Boma Ng’ombe.”

Ongoing site visits by Article 25’s Site Architect, Paulina-Shari Stanley, highlight both how far the project has come – and why the next phase matters so much. While teaching is fully underway, staff are currently preparing meals in a temporary outdoor kitchen and children eat outside, underlining the need for more permanent, purpose-built facilities as the school continues to grow.

Sustainability is central to the project’s impact. The school will be powered entirely by off-grid solar energy, supported by a solar-powered borehole to secure a reliable, year-round water supply in a region where municipal water is rationed during the dry season. Combined with school gardens that will contribute to daily meals, the development is designed to move the campus towards long-term self-sufficiency.

“The refurbished classrooms are already making a visible difference,” says Paulina-Shari Stanley.

“But the fact that meals are still prepared in a temporary outdoor kitchen and eaten outside shows exactly why the dining block, water systems and solar infrastructure are so important. This project responds directly to everyday needs, using simple, buildable solutions that will last.”

What has been completed

Phase 1 focused on refurbishing the existing school buildings, addressing long‑standing issues such as broken windows, deteriorating finishes and accessibility challenges. Completed in 2025, this work has transformed classrooms into joyful, welcoming environments. Fresh flooring, improved layouts and volunteer‑painted murals have helped foster a sense of pride and ownership among students and staff alike.

With the school now open and fully using these spaces, attention has shifted to Phase 2 – the construction of new shared facilities that will underpin the school’s long‑term growth and resilience.

What is coming next

At the heart of Phase 2 is a new dining block, designed to function not only as a place to eat, but also as a library and social hub for the school community. Designs have now been submitted and are in final review, with local structural engineers involved to support building permits and ensure robust, practical delivery. The contractor – the same team who we partnered with to successfully deliver the nearby Kao La Amani Children’s Village – is collaborating on this new building and currently confirming construction timelines.

The dining block design reflects Article 25’s commitment to simplicity, buildability and longevity. Rather than focusing on architectural gestures for their own sake, the building uses clear, honest construction and locally familiar techniques.

Key design features include:

  • A double roof will be built above the library and offices, with stone arches providing passive cooling through thermal mass and shade beneath a lightweight metal roof interior that encourages natural ventilation.

  • Low-embodied-carbon volcanic stone, quarried within kilometres of the site, is used extensively throughout the project for structural columns, walls, floor tiles and drainage gutters.

  • Volcanic stone block walls and columns are carefully detailed and tied with rebar into a reinforced ring beam, ensuring durability and seismic stability.

  • Bespoke timber furniture is being made for the school by local carpenters , supporting skills development and the regional economy. This includes new classroom furniture for the first phase and alcove-style bookcases for the new library.

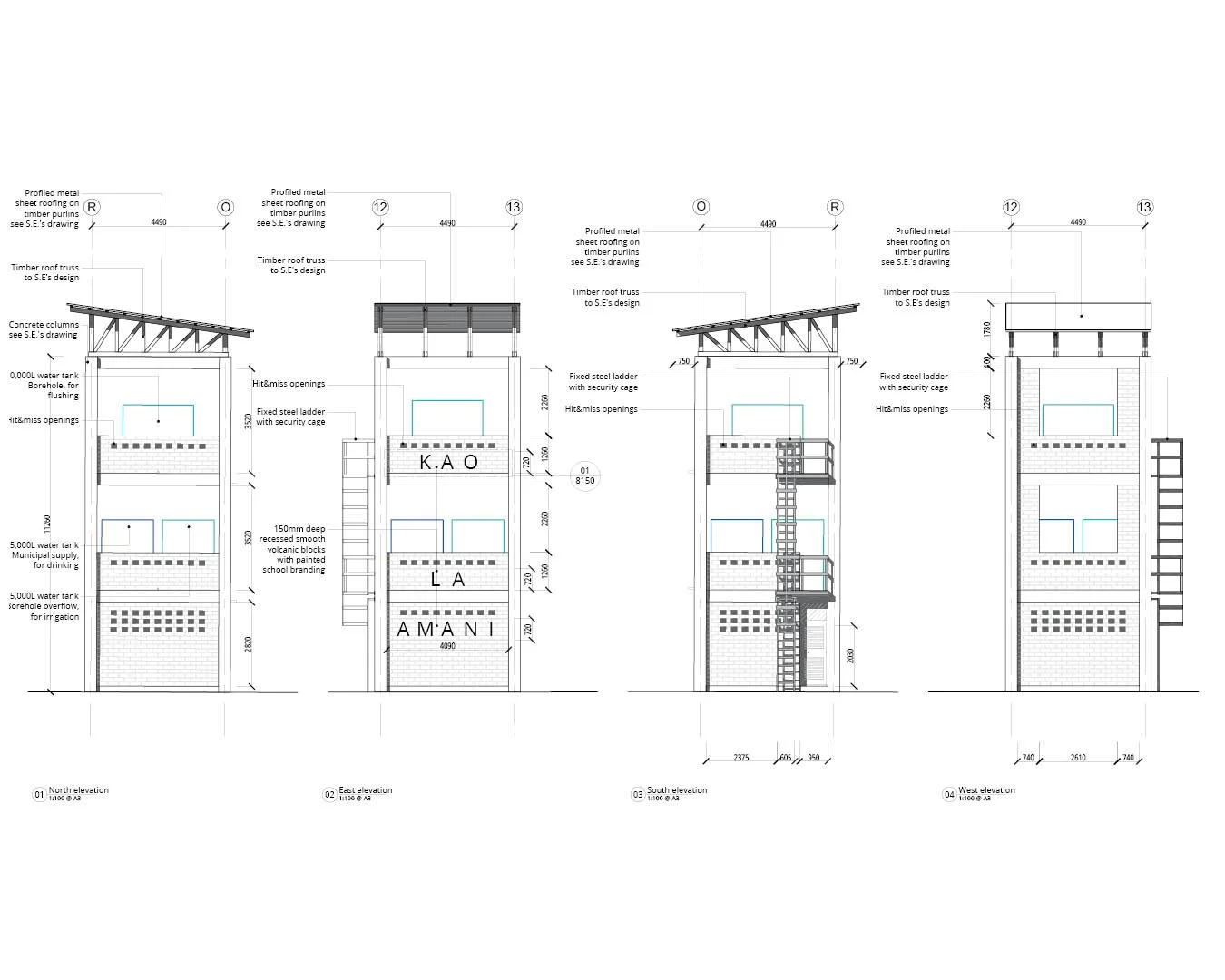
Renders and construction imagery clearly show how the building has evolved from early sketches into a practical, deliverable structure – one that responds to climate, materials and local construction knowledge.

Updated construction-phase visuals, including detailed technical drawings illustrating the next stage of development for Kao La Amani Primary and Pre-Schools.

Sustainability at the core

Sustainability is integral to every aspect of the Kao La Amani School project. The school currently relies on municipal water, which is rationed during the dry season and supplemented by storage tanks. The next phase will address this through a solar‑powered borehole system, providing a reliable, year‑round water supply while also powering the wider campus.

The entire school is designed to run on off‑grid solar energy, a first for a school in the region. Article 25 is working closely with local solar specialists and fabricators to ensure systems are appropriate, maintainable and rooted in local expertise.

Beyond buildings and infrastructure, the school garden will play an important role. Similar to the Kao La Amani Children’s village garden, which already produces vegetables for meals, it has the potential make a contribution to daily cooking at the school and to strengthen local food resilience in the community through small-scale growing.

A shared vision

For client Louise Quill of Tír na nÓg Children’s Foundation, the progress on site reflects a much bigger ambition.

“It’s about dignity, opportunity and community. Seeing the classrooms in use again, and knowing that the dining hall, water and solar systems are on the way, gives us real confidence that this school will serve children – and the wider village – for generations.”

With designs complete and construction preparations underway, the Kao La Amani School project is moving steadily from vision to reality. As children learn under the trees today, a sustainable, resilient and inspiring campus is taking shape – one that will support up to 300 students by 2026 and set a new benchmark for education in the Boma Ng’ombe region.

 

Previous
Previous

From Nepal to Montserrat: Building a better world, one community at a time

Next
Next

Voices from the field: Interview with David Hahn